Apartment in Grimma - Grimma
Germany invites you to experience its charm — from fairytale castles and vibrant cities to mountain peaks and peaceful lakes. Wander through Berlin’s history, taste Bavarian cuisine, cruise the Rhine, or hike the Black Forest. Whether you seek luxury hotels or family lodges, you’ll find comfort and adventure waiting. Each region offers a story to tell — full of culture, flavor, and stunning landscapes. Book your stay today and let Germany surprise you at every turn!
Apartment in Grimma
Grimma 22 Frauenstraße
WiFi
Parking
We speak
9.2/10
WiFi
Parking
We speak
9.2/10
Set 35 km from Central Station Leipzig and 37 km from Panometer Leipzig, Apartment in Grimma offers accommodation in Grimma. Free WiFi is available throughout the property and Leipzig Trade Fair is 35 km away.
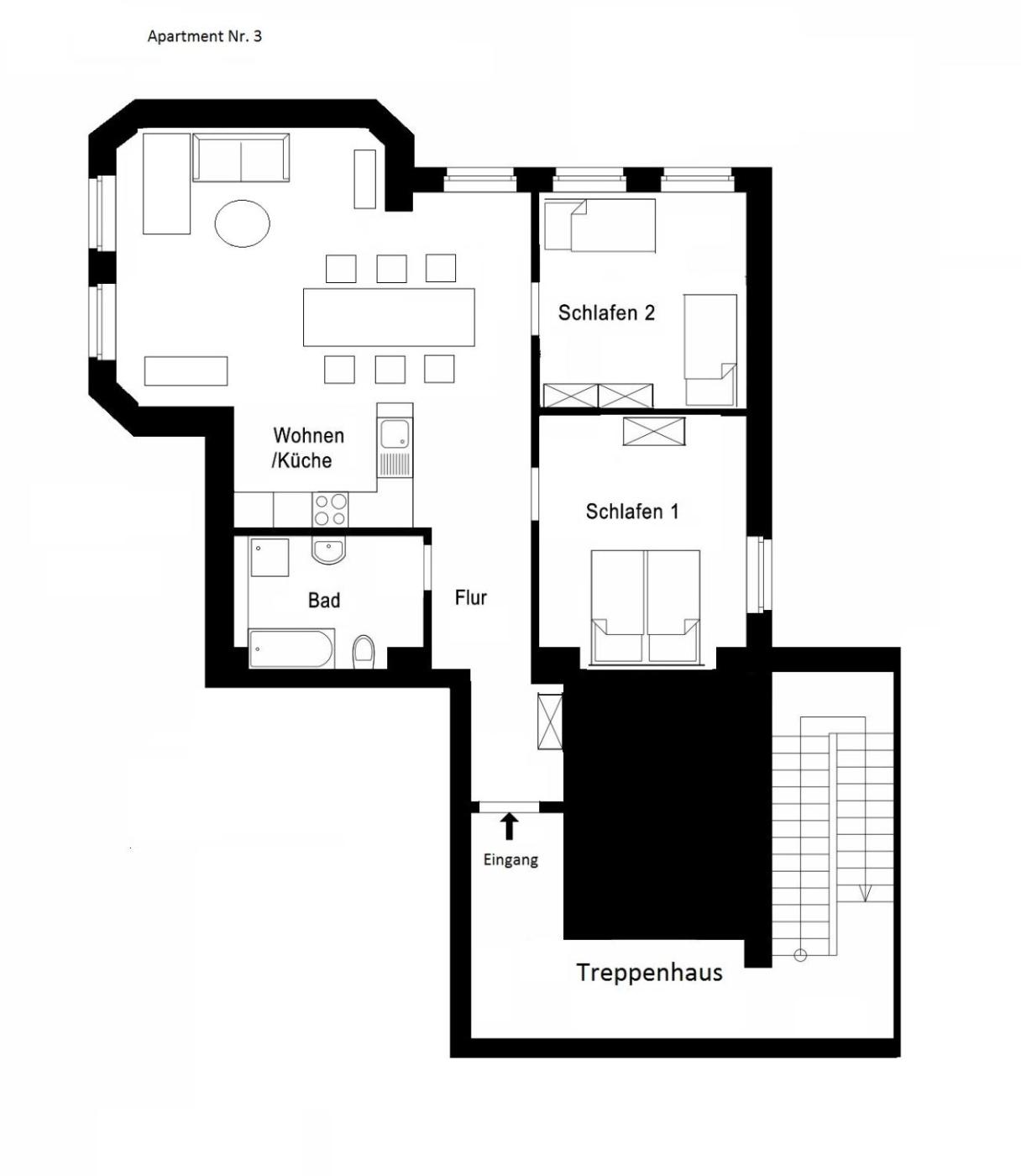
The spacious apartment has 1 separate bedroom, 1 bathroom, a fully equipped kitchenette with a dining area and dishwasher, and a living room with a flat-screen TV. The accommodation is non-smoking.
LeipzigHalle Airport is 43 km from the property.
The hotel day starts from hour 15:00 and ends at 12:00.
This property will not accommodate hen, stag or similar parties.
Managed by a private host
One-Bedroom Apartment. This spacious apartment features 1 living room, 1 separate bedroom and 1 bathroom with a bath and a shower. Guests can make meals in the kitchenette that has a stovetop, a refrigerator, a dishwasher and kitchenware. The apartment has carpeted floors, a seating area with a flat-screen TV, a coffee machine, a dining area, as well as a wardrobe. The unit has 5 beds.
Free WiFi
Non-smoking rooms
Parking
Internet services
WiFi available in all areas
Family rooms
Non-smoking throughout
Street parking
WiFi
